Gå til: Plantegninger | Fasade | Kontaktskjema
826 – LISBON
FUNKIS PÅ SITT ALLER BESTE
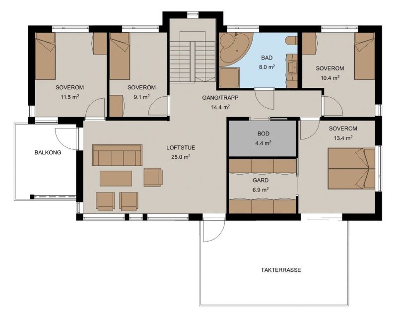
Dette er en ekstraordinær funkisvilla hvor ingenting mangler. Boligen inneholder elementer av tre, fasadeplater, stål og store vindusflater. Utvalgte vindusdetaljer gir en ekstra dimensjon til denne boligen. I en innholdsrik hovedetasje står plass og trivsel sentralt. Kjøkkenet er romslig og gir anledning til spennende kjøkkenløsninger. Andre etasje inneholder 4 av boligens 5 soverom, bad og loftsstue og atkomst til 2 flotte balkonger. Hovedsoverommet har egen garderobe. Huset har alle funksjoner på inngangs-/hovedplanet.
Begregnet for flat tomt.
Tilgjengelig bolig.
Med forbehold om at det kan være nødvendig med justeringer, det er en eldre bolig som vi ikke kan garantere oppfyller dagens tekniske krav.
TEKNISK DATA
PLANTEGNINGER
ØNSKER DU MER INFORMASJON?
FYLL UT SKJEMAET, SÅ KONTAKTER VI DEG FOR EN HYGGELIG BOLIGPRAT
ARKITEKT
ALT KAN TILPASSES FOR Å IMØTEKOMME DERES ØNSKER OG BEHOV
Fordelene med å bygge et helt nytt hus, er at du kan få det akkurat slik som du vil. Trolig finner du en husmodell i vår katalog som kan passe, men kanskje ønsker du å tilpasse boligen etter egne ønsker og behov.
Vi vil gjøre vårt ytterste for at du skal bi fornøyd, og hjelper deg hele veien fra idé til ferdig bolig. Vi har fagkunnskap og gir gode råd for at du skal få bygget en bolig som passer deg helt perfekt.





